
新作·冬日序曲 | 靈性妙筆,幻化詩意

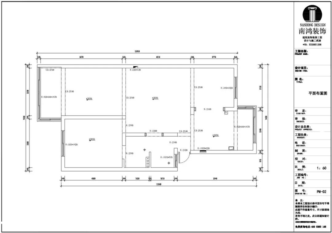
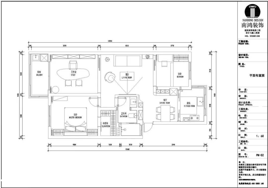
項目信息 PROJECT INFORMATION 地址/ 柳浪閣 城市/ 中國 杭州 戶型/ 三室兩廳 面積/ 100㎡ 風格/ 混搭 設計施工/ 浙江南鴻裝飾 作品前言. ABOUT HOME 這套房子是作為業主的一套備用房兼后期的工作室使用,功能設計需求主要在書房這塊區域上。 本案的客廳剛好居兩個房間的中間,為了不影響采光和空間感,客廳兩側均做玻璃移門的處理,也使得空間可以在公共與私密兩種狀態間自由切換。 墻面裝飾整體留白,用以平衡多樣化的軟裝元素所帶來的視覺厚重感。全屋使用大量溫潤的木材與暖色調的設計,如同一枚太妃糖般,帶來甜蜜而香醇的滋味。 軟裝搭配上盡顯混搭的風采:餐桌結合大理石和黃銅材質,沙發結合磨砂皮和金屬鉚釘元素,質感上都是較為輕奢的,沙發邊的斗柜又有新古典和法式的元素,茶幾也是兩種材質進行了組合......不刻意劃定風格的家具,以一種隨性而自由的姿態呈現在空間之中,組合出一幅藝術氣息濃厚的優美畫卷。 ◎ “在設計的世界里, 創新和個性是我們永不停歇的追求。 設計就是要敢于去打破常規, 通過造型、顏色、材質、形態的多變組合, 用無限的創意賦予空間更多的靈性和自由?!?/span> 戶型改造. LAYOUT DESIGN ①將原戶型廚房的外陽臺包進,優化餐廚空間。 ②書房和次臥采用移門設計,整體空間更加開闊和明亮。 ③衛生間臺盆外置,增加了主臥衣帽間。 ④次臥做多功能房,平時可以作為客廳的一部分延伸客廳的空間感,需要的時候可以作為臨時的客房使用。 ⑤主臥除了衣帽間之外,還在床頭兩側設計衣柜,進一步增加儲物面積。 實景呈現. CASE APPRECIATION No.1 客廳 客廳居于書房與次臥之間,兩側玻璃移門的設計,讓空間感得到延伸的同時,不會影響到居家私密性。地面通鋪人字拼的木地板,墻頂均做留白,居室的氛圍溫潤又安恬。 背景墻用石膏板面工藝拉出凹凸的層次,簡白有型的體態勾勒出輕松閑適感。 磨砂皮面結合金屬鉚釘的淺色主沙發,搭配木石組合的茶幾,兩側加入落地燈和法式復古風的黑色斗柜,不同材質和元素間彼此碰撞,讓空間充滿活色生香的藝術氣息,遠觀近看皆是佳景。 空間整體暖棕色系處理,加上恰到好處的留白,表述著一個關于冬天的溫暖故事,寧謐、優雅而獨特。 No.2 餐廳 餐廳位于入戶口,毗鄰廚房,選用了現代輕奢風的餐桌椅與吊燈,在溫潤木意的渲染下,呈現低調雅致的視覺觀感。 餐廚間同樣用玻璃移門隔斷,下廚的時候便能杜絕油煙的問題。木質的餐邊柜與四周融為一體,功能劃分清晰整潔。 餐食區過渡到室內我們用了曲面的轉角,形態柔和,視線轉換變得更加自然。 No.3 廚房 廚房利用U型設計將空間的利用率提到極致,木白色系呈現素雅,白色的蜂巢簾沉穩大方,獨特的光線過濾效果,倍增室內溫馨氛圍。 No.4 書房 書房需要作為主人后期的工作室使用,移門一合,便是一個完全私密和獨立的辦公、會客空間。內部延續了整體簡潔溫馨的色調,搭配朦朧感的國風壁布,使空間浸潤在和煦與靜雅之中。 書柜的設計結合了多種元素和形式,比如木材、金屬板,比如玻璃門、層板。書柜的玻璃夾絲柜門與墻面的壁布一樣,同樣具有朦朧的效果,起到呼應作用,搭配金屬質感的邊框,讓精致感、優雅感逐步豐盈。 No.5 主臥 主臥是一個簡約但優雅的空間,沒有任何視覺和行為上的干擾,只在溫柔與純凈之間,打磨出恒久的肌理和質感。床頭兩側增加儲物空間增強實用性,床尾則用一個美式的白色斗柜增加居室的復古感。 No.6 次臥




























免費
免費申請戶型規劃
專屬設計師免費1對1全程服務
已經有3777人申請
24小時免費咨詢電話
400-8800-618
你家預算
108080元