
82㎡現代意式:木韻溫和,黑調沉靜,動靜兩相宜

項目信息
PROJECT INFORMATION
地址/ 寶輝尚城
城市/ 中國 寧波
戶型/ 三室兩廳
面積/ 82㎡
風格/ 現代意式
設計施工/ 浙江南鴻裝飾
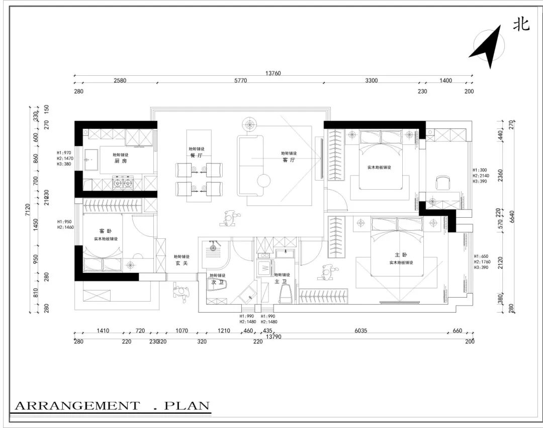
作品前言 ABOUT HOME 本案利用客餐一體的橫廳格局,將大面自然光充分引入,視野通透開放,有效緩解小戶型的局促。材質上主用溫和木飾面搭配深色石材,冷暖平衡,連續性的立面將各個區域串聯,形塑統一感。 空間整體拋卻繁雜裝飾與冗余色彩,勾勒出一方寧靜而具有質感的生活場域,也為居住者留出了更大的自由尺度。 戶型方案 LAYOUT DESIGN 實景呈現 CASE APPRECIATION No.1 客廳 公區域是一體化的橫廳格局,開闊的視野與充沛的自然光交融,將家庭所有生活場景完美收容。 沙發體量不算大,可隨時更動位置,比如從背靠餐椅轉換到背靠窗景,隨性自由的挪移之間,讓空間有了更多新鮮的面貌與情緒。 電視背景墻面右側將次臥房門做了隱形設計,與整體木飾面融為一體,組合縱向的格柵線條與深色石材,在和諧統一中拉開簡潔有力的層次,并賦予靜態墻面以流動的節奏感。 懸浮體塊造型的電視面與落地電視柜一同定制為啞光黑,氣質溫斂深邃。過道置入水吧臺,日常的沏茶煮咖啡,亦或會客時需要遞上的茶水,都將更加從容方便。色調與材質上的呼應,從不同的區域落點,在空間內形成連貫的視覺流動。 晨光里氤氳的咖啡香氣,陪伴孩子游戲的歡聲笑語,周末老友相聚時的海闊天空...家的諸多美好形態,皆在此明亮雅凈之境自然生長。 No.2 餐廳 餐廳與客廳貫通的格局,巧妙放大了空間效能,兩者互為拓展,滿足豐富多樣化的場景需求。 T型的木質餐桌銜接石材島臺,餐椅線條同樣簡潔流暢,進一步強化空間整體的利落感受。石理與木紋一以貫之的平衡,在開放格局中形出清晰的功能劃分,又通過材質的碰撞傳遞出隨性但高級的美學主張。 No.3 廚房 白色與灰色搭配的中廚空間,干凈又沉穩。灶臺區與水槽臺形成一道高低落差,精細的尺度考量,給予使用者最大的下廚舒適。 No.4 臥室 主臥改變傳統床位布局,在床頭與入口之間設計了柜體隔斷,既能顧及風水,形成一定視覺遮擋,又借助懸挑、穿插的現代化設計手法,為空間增添了高級感與藝術感。 主臥有著極簡框架下獨屬的克制、靜謐氛圍,床側梳妝臺自然地從柜體延伸而出,在色彩與結構上形成完美過渡,線條舒展而流暢。 飄窗以柔軟坐榻形式,成為日光漫入的容器,舒緩輕柔的休憩情緒悠然蔓延。留白的背景墻敞開自在呼吸,木飾面半墻勾勒空間層次,一張黑色皮藝床具介入,在色彩與肌理上形成鮮明碰撞,亦達成極妙的視覺平衡。 兒臥色調明亮清淺,長虹玻璃材質的圓弧造型柜門上,有著金色的蝴蝶拉手,仿佛隨時會振翅飛舞,為孩子日常注入童話般的奇妙想象力。 No.5 衛生間 針對衛浴間的墻面結構,設計師定制了三角斜切臺盆柜,貼合空間走向,有效提升轉角利用率。同時增添吊柜,拓展儲物功能,底面的懸空留出更多視覺空間,也便于日常的清潔打理。
























免費
免費申請戶型規劃
專屬設計師免費1對1全程服務
已經有3790人申請
24小時免費咨詢電話
400-8800-618
你家預算
108080元