
東寶翠軒92㎡ | 在簡與醇之間,安放生活
本期要為大家分享一套92方現代中古風的案例。
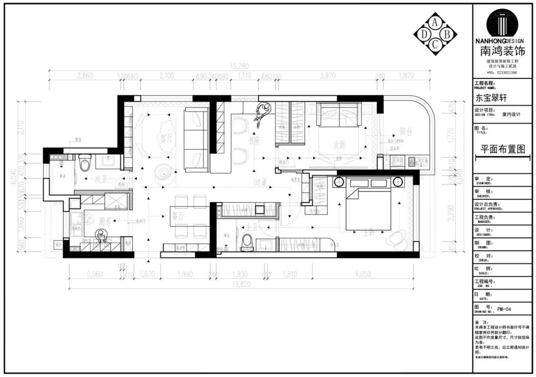
整體選用淺白、奶油色搭配,輕緩的色系將空間感盡可能放大。書房設計與客廳連通,這也令公共區域更加流暢通透,視野不受拘束。 沉穩濃郁的深色胡桃木點綴空間,亦增添了許多中古的醇厚質感。 ▲平面方案 客廳與書房貫通之后,視野與光線自在敞開,加上整體淺淡柔和的硬裝基礎,讓家的氛圍更顯舒緩放松。 無主燈的頂面不壓抑層高,電視背景墻在實現大量收納功能的同時,兼顧了造型的簡約與美觀。 家中各處以干凈利落的線條勾勒,營造明亮整潔的生活環境。隱形門融入墻面,提升客廳立面的一體性與完整度,空間更顯從容。 餐廳動線靠近廚房,餐桌靠墻擺放,為另一側留出寬敞的走道空間,整體木質材料營造沉靜氛圍。餐邊柜搭配可移動插座,為小電器的使用提供日常便利。 書房全然打開,并沿與客廳的隔墻延伸出書桌,搭配一組玻璃門板吊柜,構成簡潔而功能完備的閱讀辦公區。臨窗處卡座與儲物格一體成型,既收納雜物,又能容納閑適時光。 圓弧門洞讓區域過渡變得更為柔和,過道空間也并不浪費,而是將儲物與展示融合一體,陳列主人收藏的潮玩手辦,家因此有了生動而鮮活的氣息。 視線向上,圓拱造型從門洞延伸至頂部,形成連貫的視覺語言,勾勒出優雅輪廓的同時,還巧妙隱藏了空調風口,將功能化作整體設計感的一部分。 主臥是專屬居者的一方私屬領域,色系在垂直維度上形成輕柔對話,上半部分的淺白為空間留足呼吸感,下半部分的沉穩木色則將視覺沉淀,讓氛圍落于踏實的安穩。 次臥作為家中一處方便觀影的休閑區,一張柔軟的雙人沙發,搭配木質邊幾,便足以構建出舒緩悠然的精神棲息地。 衛浴空間的線條同樣簡約流暢,不帶來任何視覺上的干擾,一切都可依循自己的節奏有條不紊展開,穩步開啟一天生活。 項目信息 項目名稱:東寶翠軒 設計風格:現代中古 項目類型:三室兩廳 項目地點:中國·杭州 項目面積:92㎡ 項目服務:設計·施工·硬裝·軟裝 全案設計 設計團隊:杭州南鴻裝飾 張濤 設計單位:浙江南鴻裝飾 施工單位:浙江南鴻裝飾













免費
免費申請戶型規劃
專屬設計師免費1對1全程服務
已經有3793人申請
24小時免費咨詢電話
400-8800-618
你家預算
108080元