
云浦佳苑103㎡ | 灰得高級,亮得通透!

項目信息
PROJECT INFORMATION
地址:云浦佳苑
城市:中國·杭州
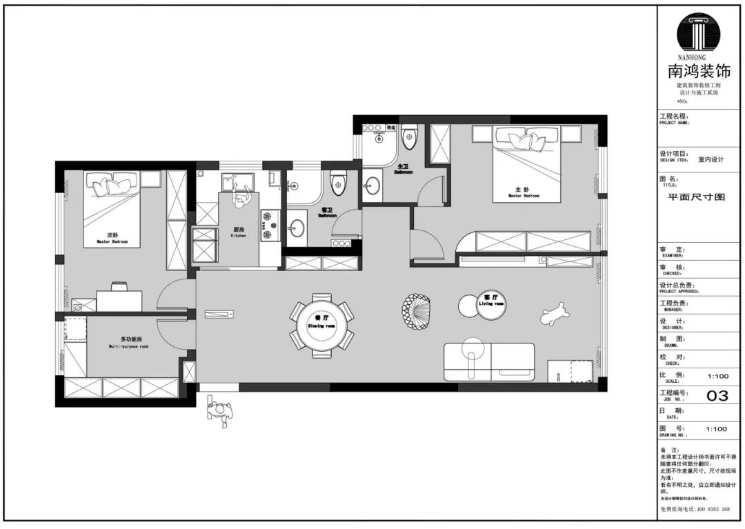
戶型:三室兩廳
面積:103㎡
風格:現代極簡
設計團隊:杭州南鴻裝飾 王麗婷
設計單位:浙江南鴻裝飾
施工單位:浙江南鴻裝飾
作品前言 ABOUT HOME 本案是一套103方的回遷房改造項目。設計簡化室內的色彩、線條及其余裝飾元素,讓空間回歸最本質的狀態。 清爽的視覺基底,不僅是讓居室變得更加敞亮,更重要在于,它弱化了物質表達,使居者可以從外界的繁雜中抽離,專注于生活本身。 居住,不再僅是身體的靠放,而是一種從心出發的體驗。 戶型方案 LAYOUT DESIGN 實景呈現 CASE APPRECIATION No.1 客廳 簡潔卻有力的塊面與線條,搭配無主燈設計,構造出滿屋清爽。陽臺納入室內并配置生活功能,頂面黑色軌道燈與墻壁上的條形壁燈作巧妙呼應,大量淺色中融入沉穩的深,于對比中刻畫極簡的張力。 兩側背景墻,一側鋪敘利落的收納格局,另一側以簡雅對觀,雅白色藝術漆肌理細膩,隨光線流轉顯現出微妙陰翳,為空間鋪陳出靜謐的底質。 No.2 餐廳 餐廳居于動線集中的通道,以圓桌的形式向兩側釋放走動空間,頂部懸落一盞飛碟造型吊燈,優雅界定場域。 頂面橫梁被輕柔包裹,化作流動而有藝術感的圓弧界面,同時也柔化空間結構,讓空間的氣質更顯輕盈。 No.3 廚房 我們給廚房設計了三聯動深玻門,通過三片門扇的銜接、滑動,節省出更多出入空間。內部大面積深灰色的櫥柜,不張揚而自有一種分量感。 No.4 臥室 臥室延續外部的從容秩序,黑色皮革床頭帶來雅致、柔和的依靠,纖細線條的吊燈組合床頭柜,減少軟裝上的體量感,并營造趣味的對比變化。 簡潔淺色系烘托適宜好眠的氛圍,無把手衣柜輕盈承載著有序儲物的功能。 背景墻延續全屋的藝術漆肌理,平靜中包含細膩的層次變化。角落里的創意多彩小吊燈,為空間添入了獨特的視覺亮點。 No.5 衛生間 衛浴空間鋪陳素雅的底色,打造整潔洗沐環境。鉆石型淋浴間采用穩固的框架結構,利用角落區域,讓每一寸空間都發揮價值。















免費
免費申請戶型規劃
專屬設計師免費1對1全程服務
已經有3793人申請
24小時免費咨詢電話
400-8800-618
你家預算
108080元