
杭州公館 | 在日常與超越日常之間,感受現代輕奢的美與舒朗
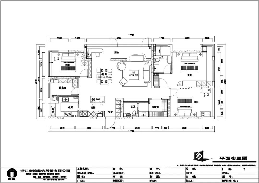
項目信息 / 地址:杭州公館 城市:中國 杭州 戶型:三室兩廳 面積:140㎡ 風格:現代輕奢 設計施工:浙江南鴻裝飾 設計需要了解居住者真正的生活需求與使用習慣,才能在原有戶型的基礎上重塑空間,構出一個符合屋主日常生活的合理洄游動線,讓人住得更加愜意和自由。 本案以現代輕奢風為底,主打大面積的中性灰元素,同時添加入沉靜的木質材料與溫和的軟裝色彩點綴,給現代基調的空間升溫。開放式公區域設計創造更多人與人之間的互動體驗,巖板、格柵、硬包、皮革等多材質混搭,呈現出層次分明疊加遞進的空間感。 玄關 Hallway 站在餐廳的位置看向玄關,玄關與公區域之間無任何阻隔,讓一進門的視線,沒有逼仄或擁堵之感。 屋里儲物空間非常多,玄關的地方也沒有浪費,干凈的柜面拋去冗余,只留純粹。 餐廳 Dining Room 進門來到餐廳和西廚的區域,與客廳共同形成一個大的開放式空間,深灰的色調沉穩耐看。靠近吧臺的地方安置餐邊柜與吊柜,用來擺放酒品、茶具和各種杯子,玻璃的屬性無形中放大了空間。頂面點、線光源結合,保持整體的簡潔。 吧臺位于采光最好的陽臺區,承接著日光的洗禮,是飲茶品酒的好去處。 客廳 Living Room 客餐廳與相鄰陽臺間做了一道墻體阻隔,劃出相應界限,使空間結構不會過于松散。 作為都市潮流一族,屋主本身更青睞于黑白灰的調性以及簡單干凈的事物,客廳的布置上也同樣如此。設計在竭力表現色彩的柔和與造型的簡潔,“簡單造就高級”絕不是一句虛言。 廚房 Kitchen 原戶型廚房較為狹小,所以改造后用西廚來擴充必要的操作空間。深色木質櫥柜創造相對厚重的磁場,散發令人安心的氣息,讓人不禁會沉下心來,靜靜感受美食的滋味。 呈U型布局的中廚區,地柜+吊柜的組合承擔大量儲物功能,再多的鍋具和零碎的杯盞碗碟,都有了適合的容身之所。白凈的面一直延伸到頂部,給人以明朗感。 臥室 Bedroom 主臥私密空間,中性色包裹著柔和的情緒,無冗余的設計為主人消弭都市的聒噪,創造寧靜安神的舒心環境。 次臥開啟個性化定制,水泥灰藝術涂料與臟橘色硬包背景結合,空間成功接入了趣味、活力與生氣。 衛生間 Bathroom 衛生間,中性灰的瓷磚打造里外干濕區域,色彩上由黑白灰平衡搭配,不致單調。























免費
免費申請戶型規劃
專屬設計師免費1對1全程服務
已經有3787人申請
24小時免費咨詢電話
400-8800-618
你家預算
108080元